Ficha
Piso de 4 habitaciones en Avenida Estatut de Rubí. Reformado, con balcón y espectaculares vistas
Rubí (AV ESTATUT) - REF. 2215
81 m2 6 m2 4 1 6
venta: 218.000 €
antes: 238.000 €
Descripción

Morán&Sender, les presenta este inmueble situado en la principal arteria de Rubí. La Avenida Estatut se destaca por sus excelentes conexiones a todas las poblaciones, es una zona vibrante y muy apreciada, donde se encuentran los mejores pisos de la población. 
El inmueble que les presentamos es un piso alto con excelentes vistas y tranquilo. Cuenta con cuatro habitaciones, un salón con salida a un generoso balcón, cocina con salida a galería y un baño exterior.
El inmueble reformado recientemente, cuenta con suelos de parquet de muy buena calidad, carpintería interior en blanco chapado, exteriores de aluminio, calefacción, y un largo listado de comodidades para hacer la vida más fácil a sus nuevos propietarios.
Luz, claridad y espacio son las palabras que definen a este piso tan especial; donde asomarse al balcón nos dará una sensación de libertat  y tranquilidad.
No perdáis la ocasión de visitar vuestro próximo hogar

Posibilidad de dos plazas de parquing en alquiler frente al edificio. Són para coche grande una 65€ y la otra a 70€.

Características
Precio Venta 218.000 €
Año de construcción 1976
Construidos 81 m2
Útiles 78 m2
Dormitorios 4
Baños 1
Cocina Amueblada
Calefacción Gas
Terraza
Altura/Planta 6
Estado NORMAL (bien conservado)
Tipo de suelo Parquet sintético
Ascensor
Adaptado
Calificación Energética (D) VER
Luz
Gas
Agua
Archivos adjuntos
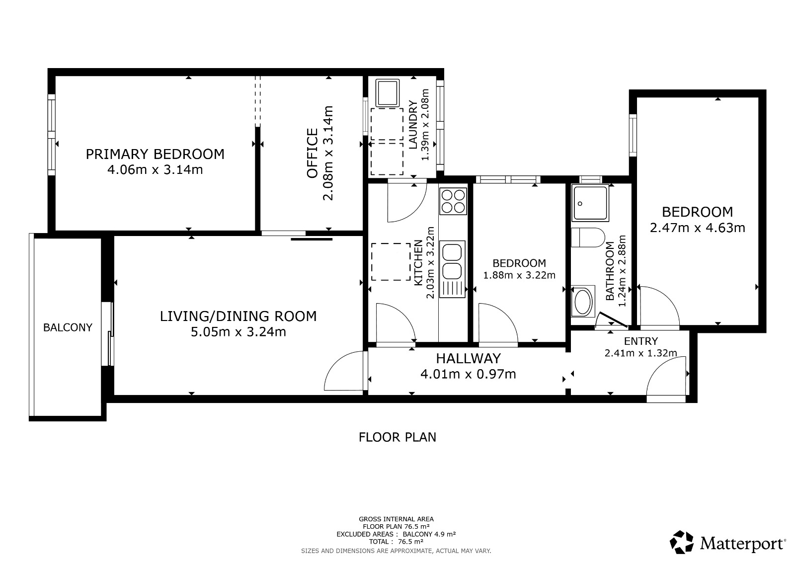
  • Plano avenida estatut.jpg
  • Escalas de eficiencia


    Eficiencia Emisiones: 18,00
    Eficiencia Consumo: 88,00
    88
    18

    Contáctanos

    Si deseas más información sobre esta propiedad, por favor, rellena el formulario.

     Sí, he leído y/o acepto las Condiciones de uso y la Política de privacidad
    Inmuebles similares:
     
    260.760 €
    Ref. 2291  67 m2  3  2
    Piso en venta en Caldes de Montbui, con 67 m2, 3 habitaciones y 2 baños, Piscina, Garaje, Trastero, Ascensor, Aire acondicionado y Calefacción Aerotermia.
     
    221.540 €
    Ref. 2281  57 m2  2  1
    Piso en venta en Sentmenat, con 57 m2, 2 habitaciones y 1 baños, Piscina, Garaje, Trastero, Aire acondicionado y Calefacción Aerotermia.
     
    177.000 €
    Ref. 2194  97 m2  4  2
    Descubre este dúplex único en Can Anglada, Terrassa: dos viviendas en una, con un piso completo en la planta baja y un estudio independiente arriba con gran terraza. Perfecto para familias que buscan espacio, independencia y versatilidad, o para quienes quieren combinar hogar y oportunidad en un mismo lugar.